Building Profitable Property Ventures with Reliable Returns
Building Profitable Property Ventures with Reliable Returns
Opportunity 1
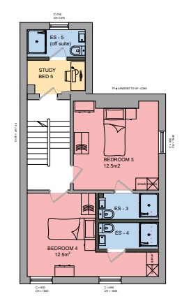
We’re converting this 5-bedroom property into a 6-bedroom HMO tailored for working professionals. The new layout will feature 5 en-suite bedrooms and 1 bedroom with its own private off-suite bathroom and dedicated study area.
This project is designed for high end living standards at affordable price point. providing luxury accommodation that meets the needs of todays professionals.
Ground Floor
First Floor
Second Floor
Opportunity 1
About Project:
Prime Location with High Demand
Potential for High Capital Growth
Long-Term Rental Income Opportunities
Opportunity 1
About Project:
Prime Location with High Demand
Potential for High Capital Growth
Long-Term Rental Income Opportunities
Opportunity 1
About Project:
Prime Location with High Demand
Potential for High Capital Growth
Long-Term Rental Income Opportunities
What to Expect​
Personalised Approach
Every project is unique, and we tailor our approach to fit your specific needs and goals.
Clear Communication
We keep you informed at every stage of the process and provide you regular updates.
After Support
Our commitment to your success doesn't end at launch. We provide after launch support.



